Schneidlinie
Die Kernausrüstung der automatischen Schneidlinie. Mit automatischer Identifizierung der Größe und Position des Papierhaufens, der automatischen Fütterung, des Schneidens und des Entladens von Papier können die fertigen Produkte verschiedener Texturen schnell in die vorgegebene Position transportieren und das Papier automatisch von der Tabelle zur Basis der vorgefertigten Höhe entladen.
Der gesamte Prozess der Papier -Fütterung, des Schneidens und des Entladens ist genau und effizient, verringert die Arbeitsintensität und verbessert die Produktionseffizienz.
Parameter
Video


Produktbeschreibung

Platzierungsmethode 1

Platzierungsmethode 2
Automatische Laderautomat LD-2 / Ld-4
Papierschneidemaschine QZK 1370m15
Automatische UNL OADING -Maschine Lg-2 / Lg-4
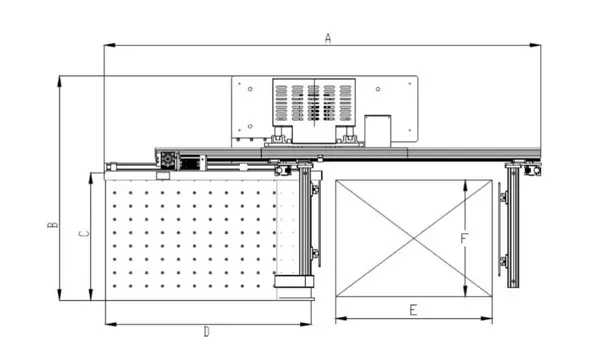
Mechanische Zeichnungen
Abmessungen
Mechanische Details
Vorherige: Ld-4 Automatische Laderautomat